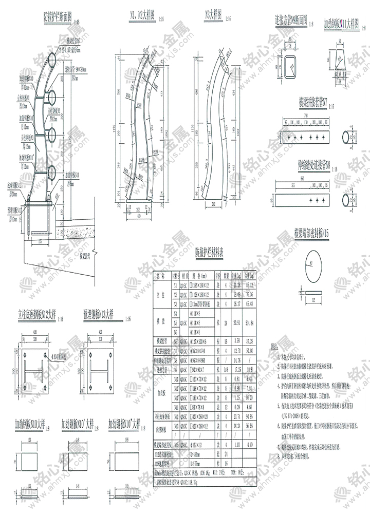
橋梁護欄
橋梁護欄
發布日期:2017-1-11 瀏覽次數:6916
產品特點:
大型的橋梁上不僅有兩側的護欄,還有中央護欄,它們有著相似的功能,但卻有不同的目的,
橋梁兩側護欄:是指設置于橋梁兩邊的護欄。目的是防止失控車輛越出橋外,避免碰撞路邊其它設施和車輛翻出橋外。
中央護欄:是指設置于橋梁中央分隔帶內的護欄。目的是防止失控車輛穿越中央分隔帶闖入對向車道,并保護分隔帶內的構造物。
不管是橋梁兩側護欄,還是中央護欄,其受力力學特性可分為剛性護欄,半剛性護欄和柔性護欄三種形式。
橋梁護欄形式的選擇,首先要根據防掩等級要求,避免在相應設計條件下失控車輛躍出.同時還應綜合考慮公路等級、橋梁護欄外側危險物的特征、美觀、經濟性.以及養護維修等因素。
111111111111111111111111111

